Перепланировка
квартир в Минске
Оказываем полный спектр услуг по перепланировке:
- проектируем
- выполняем
- согласовываем



Какие изменения в квартире требуют согласования перепланировки?
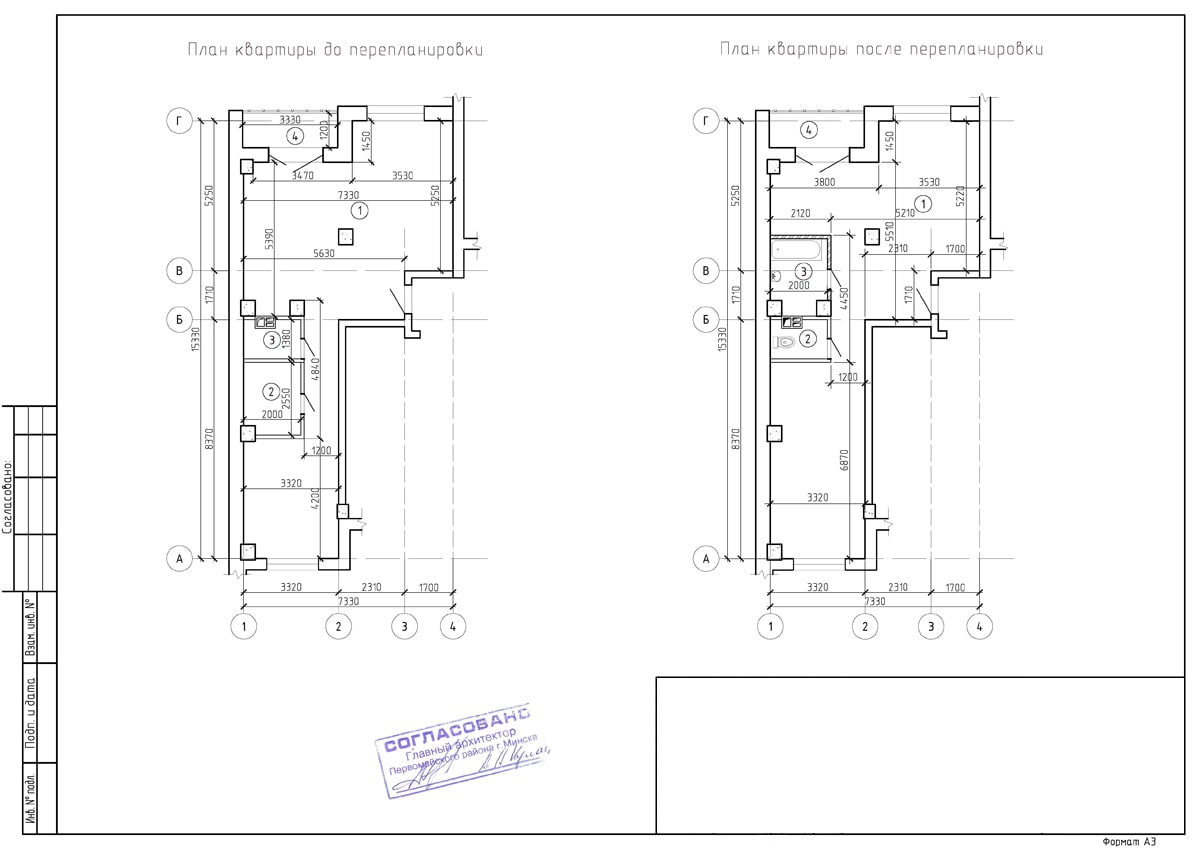
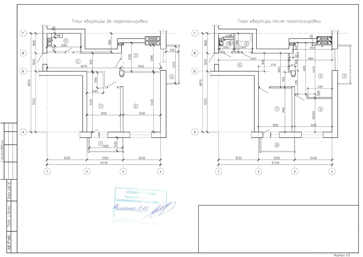
- Устройство, увеличение проёмов в несущих стенах и перегородках
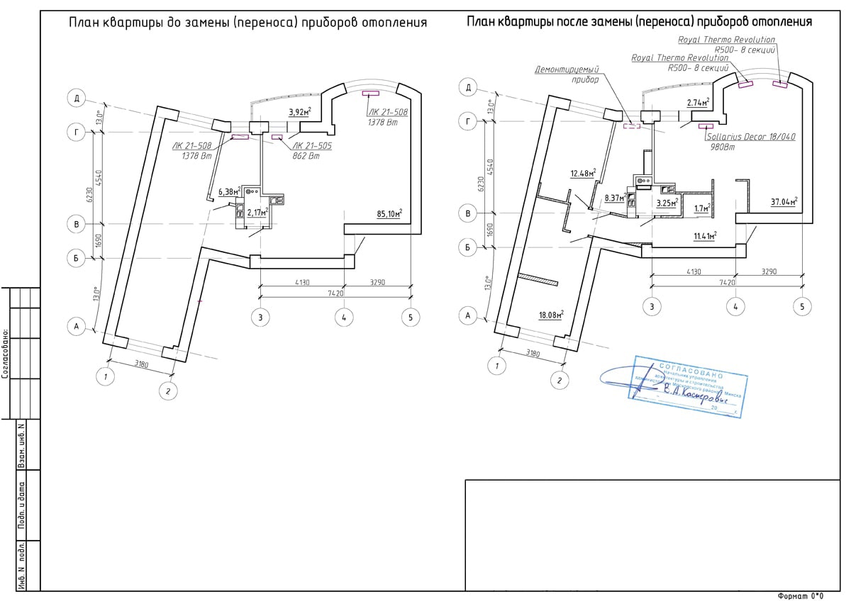
- Перенос, замена систем отопления
- Перенос систем газоснабжения
- Расширение или перенос кухни
- Изменение площади санузла или ванной комнаты
- Объединение, разъединение санузла и ванной комнаты
- Устройство звуко-, паро-, тепло-, гидроизоляции
- Изменение площади квартиры за счёт разборки существующих и (или) устройства новых перегородок
Чем мы можем Вам помочь
Более 5 лет оказываем весь перечень услуг по перепланировкам квартир в Минске. Начиная от проектирования и получения разрешения, и заканчивая выполнением ремонтных работ и оформлением нового техпаспорта.
перепланировки
перепланировки
ОВ: 200 - 300 руб
ВК: от 200 руб
КР: от 1100 руб
работы
надзор




